进展神速!实拍秦淮河边中冶豪宅,洋房露真容
今年是改善大年,其中城中和城南近期都要有不少品质纯新盘上市,颇引人关注。
放风价超5万的中冶锦绣珑湾(中冶锦绣珑湾_南京中冶锦绣珑湾详情-南京搜狐焦点网)作为城中稀缺低密住宅一直都是主城改善重点项目,而今年最大的黑马南部新城也将迎来南京第二座金茂府——云澜尚府,两大项目都是板块内的标杆,如今进展如何?什么时候能上市?今天就随着血拼姐一探究竟吧。
01中冶锦绣珑湾
A地块洋房已进入收尾阶段
首先血拼姐来到了中冶锦绣珑湾,从施工现场看到,A地块的两栋7F洋房的外立面已进入收尾阶段,有消息称,1、2号楼的7层洋房户型面积为101-200平,放风价5万多,预计6月上市。
据现场工作人员介绍,位于两个洋房之间的便是售楼处。从现场可以看到售楼处已经开始修建,售楼处位于两栋洋房之间。
血拼姐从工地外围看到,B地块所有住宅楼的塔吊均已就位并作业,工地上,各个楼栋正在加紧建设中。
从目前的进度上看,A地块的洋房或许确实会成为首开住宅楼。
02城中改善豪宅:
高端精装洋房、高层产品
项目共打造4栋洋房和3栋小高层产品,面积段偏大,是城中非常稀缺的改善类豪宅。
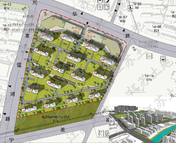
中冶锦绣珑湾前身为NO.2017G59地块,2017年10月31日,中冶以总价14.2亿元拿下该地块,楼面地价为32544元/㎡,需现房销售。中冶G59地块东至清水塘路,南至节制闸路,西至节制闸路9号小区,北至枫丹花园小区。项目总建筑面积约58591.14平,其中地上建筑面积约43704.14平,地下建筑面积为15866.3平。
地块拟建设7栋住宅楼及相关配套设施,住宅分为A、B两个地块建设,其中A地块建为2栋7F洋房(2号楼住宅楼局部为6F,地下一层为设备用房、储藏间及地下车库)。B地块为3栋14F小高层、1栋8F洋房、1栋7F洋房、1栋1F物业用房、1栋1F配套用房(配电房、开闭所),地下一层为设备用房及地下车库。
紧邻南京老城,周边配套成熟
作为南京老城,周边的配套相当成熟。周边环境上,项目临近东水关遗址公园、白鹭洲公园、七桥瓮湿地公园,景观资源非常丰富,同时又靠近秦淮风光带。
交通上,临近地铁3号线武定门站,距离仅600米,周边还有在建的地铁5、6号线,分别将于2022年、2023年建成通车。
商业配套上,区域内的餐饮超市等居多,可以满足日常需求,购物娱乐也可乘地铁便可直达最近的新街口商圈。
教育方面,项目旁边即为南京小西湖小学,步行5-10分钟即可到达。除此之外,项目周边还有南京市第一幼儿园、五老村小学马府街分校、南航附属初级中学、高中南京第三高级中学、南航附属高级中学等,教育资源较为优质。
医疗资源方面,周边有南京市第一医院、市中医院、红十字医院、八一医院、四五四医院和东部战区总医院等等。
周边在售新品房源
值得注意的是,距离中冶锦绣珑湾不远的有2大新盘:南京地铁资源G63地块和华发G05地块。
其中南京地铁资源G63地块在2018年12月,南京地铁以9.4亿元底价拿下,楼面价24327元/㎡,据消息将由保利操盘!项目紧邻地铁5号线小天堂站,银行、医院、超市等各项配套设施完善,居住氛围浓厚。
项目拟建3栋商住混合楼,A地块1栋,B地块2栋。其中1-2层为配套商业,3层及以上为住宅,地下为商业、停车配建等。
华发G05地块在今年4月29日,被华发以69.1亿元拿下,成交楼面价29821元/㎡。
G05用地超9万方,是城中东部较稀缺的大体量综合体,将建高质量的商住综合体项目,形成主城东部的商业地标、人居标杆,为该区域的商业、办公等业态发展注入新的活力。
周边二手房源
今年以来,区域内的新房入市较少,而周边二手房均价为3-4.6万元/平。
周边大多为老旧小区,距离项目较近的枫丹白露小区,为2004年建成,均价为4万/平;周边较新的小区龙蟠和园为2014年建成,目前均价4.5万/平左右。还有其他住宅大多也建成有三四十年了。
看完城中的中冶锦绣珑湾后,血拼姐来到南部新城的云澜尚府。
云澜尚府预计6月将首开1、5号楼,约256套房源
云澜尚府(云澜尚府_南京云澜尚府详情-南京搜狐焦点网)作为南京第二座金茂府,关注度也是极高的。
血拼姐来到云澜尚府项目地发现,售楼处建在了工地的围挡内,但远远可以看到售楼处已基本建成,外立面也已完工。
目前,云澜尚府已在河西金鹰世界7楼公开城市展厅,时间自5月6日至5月30日。预计6月将首开1、5号楼,约256套房源。
最新消息,云澜尚府为168、188、228平三大户型,均是四房两卫起步。
据消息,项目售楼处将于5月底公开,最快6月首开1、5号楼约256套房源,户型为168、188平。值得注意的是,最新放风价5.2万/平!对比之前放风价5.5万/平,下降3000元/平。
D-168平
C-188平
A-228平
云澜尚府前身为金茂大校场G32地块,该地块成交总价51.5亿元,楼面价29705元/平,该项目由金茂、金基、建发、新希望4家房企联合开发,打造的是金茂旗下高端住宅“金茂府”产品系。
项目为11栋17-32层的高层、小高层,其中1、2、5、8、9号楼为32层;6号楼为31层;3、4、11号楼为17层;10号楼为18层;7号楼为19层;4号楼为17层的人才房。(120平户型专供人才房。)
商业上,按照规划,南部新城被规划为都市级商业中心,这意味着未来将直接对标新街口商圈与河西新城。
交通上,周边在建的地铁5号线七桥瓮站预计2022年通车,在建的地铁6号线大校场路站预计2023年通车。直接连接南京南站线路,未来还有有轨电车及多条公交路线,交通将十分便利。
教育上,板块内有南京第二十七中学、南京市怡馨花园小学、南京秦淮外国语学校、南外大校场校区(目前已选址,设初中、国内、国际高中部,项目预计2022年完成)、钟英中学分校(已选址)、游府西街小学分校(已选址)。
医疗配套上,除了南京市中医院,未来还有银城打造的国际医疗健康城。
想靠近南京主城区置业的购房者,今天血拼姐实探的两个房源都是不错的选择,这两个项目你觉得哪个更适合入手?



